Desain Rumah Subsidi 18m², Solusi Genz Cari Hunian
Rumah subsidi ukuran 18m² jadi opsi baru untuk Gen Z dan keluarga kecil. Model simpel tapi tetap nyaman dan layak huni. Yuk cek desain dan fiturnya!
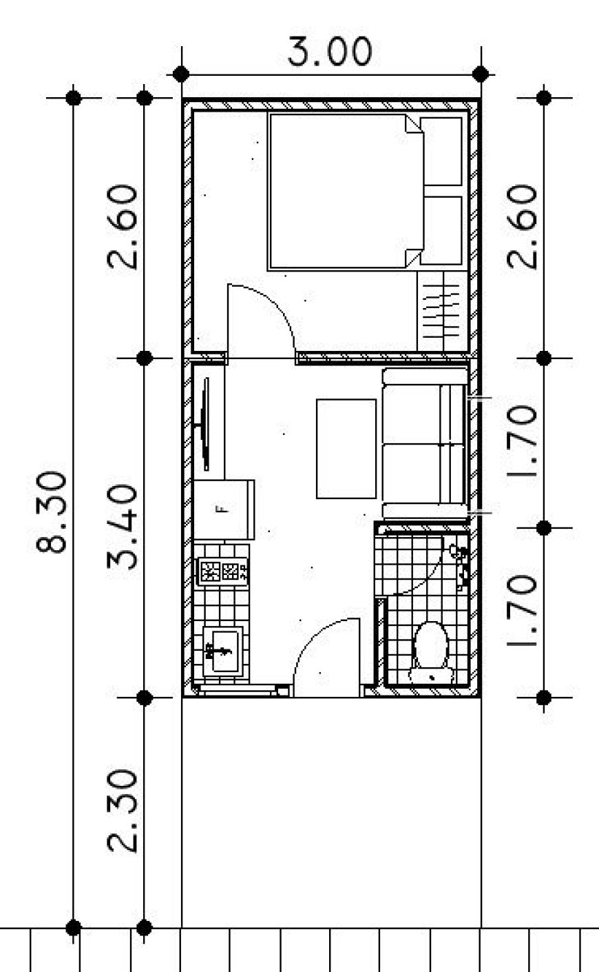
Desain rumah subsidi makin fleksibel, apalagi buat kamu yang lagi cari hunian pertama. Kementerian Perumahan dan Kawasan Permukiman (PKP) lagi godok model rumah subsidi mungil ukuran 18 meter persegi di atas tanah seluas 25 meter persegi.
Meski kecil, rumah ini tetap punya kamar tidur lho! Bahkan ada dua model: yang satu kamar dan dua kamar. Ukuran kamar tidur sekitar 3x2,6 meter sampai 3x2,8 meter. Cukup banget buat kamu yang masih sendiri atau pasangan muda yang belum butuh banyak ruang.
“Rumah ini cocok buat keluarga kecil atau yang masih single. Tapi kalau anaknya satu pun, masih bisa kok ditempatin,” kata Dirjen PKP, Sri Haryati.
Desain rumahnya memanjang ke belakang, mirip rumah kontrakan 3 petak. Tapi tetap punya halaman depan yang bisa dipakai buat parkiran satu mobil. Di dalamnya, ruang tamu menyatu dengan dapur dan ruang cuci. Penyimpanan dapur ditaruh di bagian atas berbentuk kitchen set biar hemat ruang.

Uniknya, ada dua versi desain. Versi pertama kamar mandinya di belakang, dekat kamar tidur. Versi kedua, kamar mandi di depan, sebelahan sama ruang tamu dan dapur. Keduanya tetap nyaman dan efisien.
Kamar mandinya juga kece! Udah dipisah antara area basah dan kering, ada kloset duduk,



